4431 Old Kingston Road

portland - ontario


4k Video tour


location

 

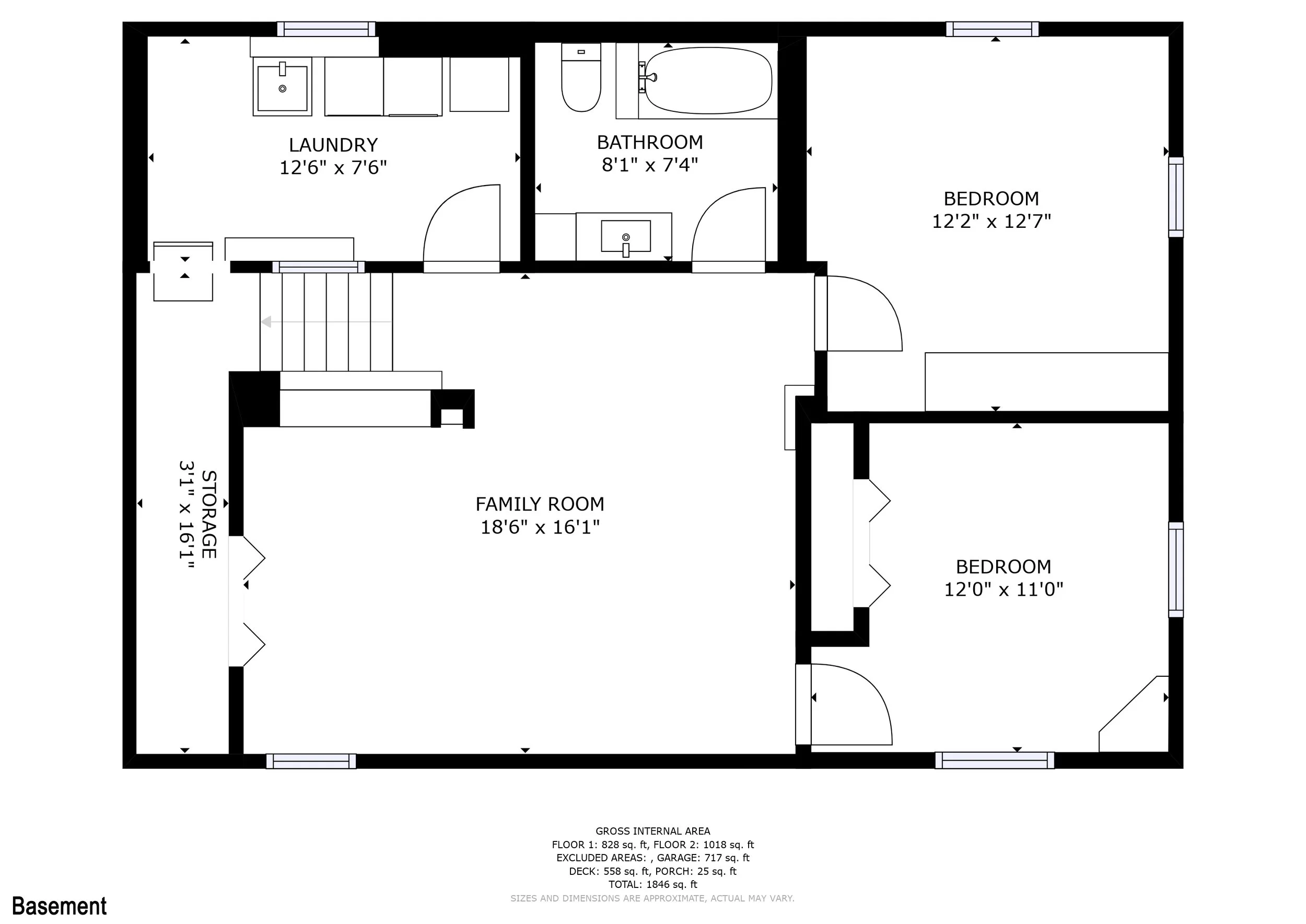
floor plans




take the tour

contact Mandy

Let’s talk about this property!

contact direct at 613-200-6000